arrow_back All Floor Plans
Plan #09

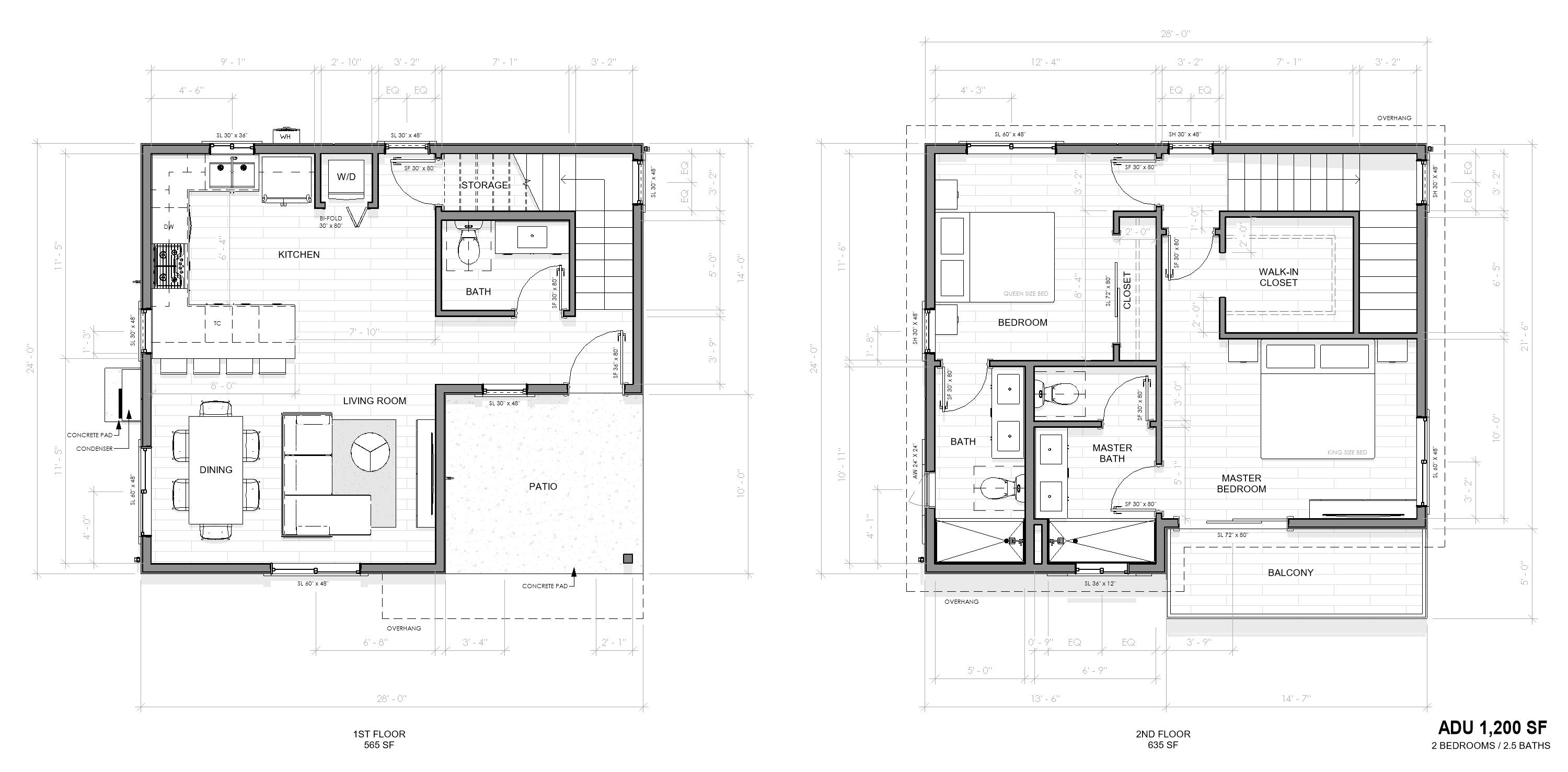
Cielo

1,200
Sq Ft
2
Bed
2.5
Bath

About the Cielo

The Cielo is a beautifully designed 1,200 square foot 2-story ADU featuring 2 bedrooms and 2.5 bathrooms. Every plan by CRS Builders comes with premium finishes including quartz countertops, luxury vinyl plank flooring, and modern fixtures.

This plan is fully customizable — adjust the layout, finishes, and features to match your exact needs and property constraints. Our design team will work with you to make it yours.

What's Included

check_circle Full architectural drawings
check_circle Structural engineering
check_circle Permit processing
check_circle Premium finishes
check_circle Energy-efficient design
check_circle Full site preparation
architecture Floor Plan Drawing
Cielo 2D Floor Plan Drawing
zoom_in
view_in_ar 3D Model Renders

See It Come to Life.

Cielo 3D Isometric Model — Primary View
Cielo 3D Isometric Model — Alternate View
Start Your Project

Love the Cielo?

Schedule a free consultation and we'll walk you through how the Cielo can work on your property. Every plan is fully customizable — no pressure, no obligations.

verified CA Licensed (Lic# 1041423)
shield Fully Insured
star 150+ Happy Clients