arrow_back All Floor Plans
Plan #02

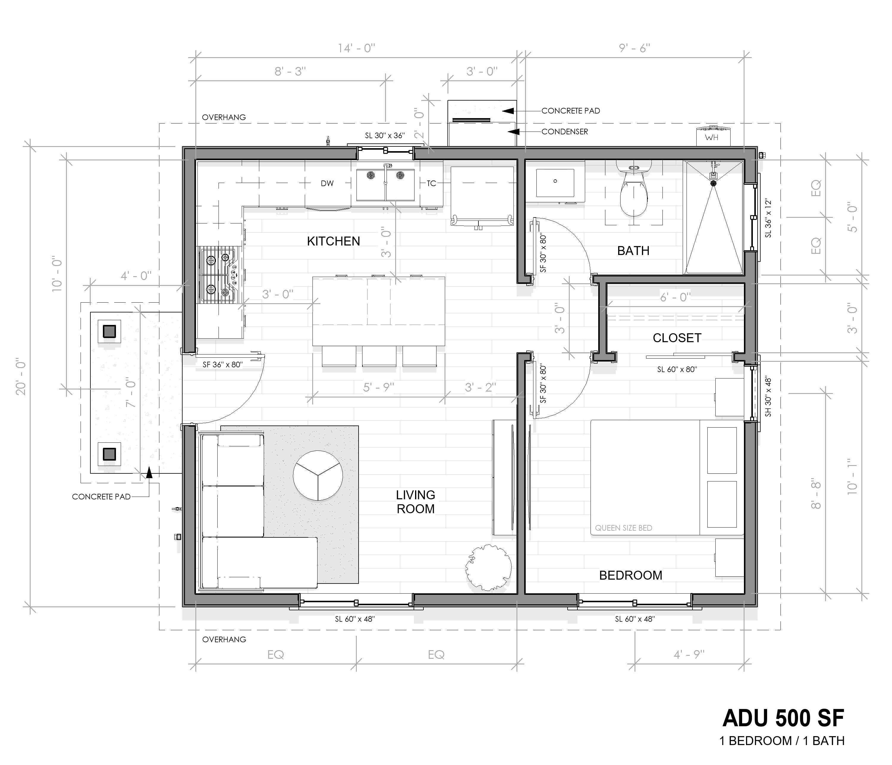
Vela

500
Sq Ft
1
Bed
1
Bath

About the Vela

The Vela is a beautifully designed 500 square foot ADU featuring 1 bedroom and 1 bathroom. Every plan by CRS Builders comes with premium finishes including quartz countertops, luxury vinyl plank flooring, and modern fixtures.

This plan is fully customizable — adjust the layout, finishes, and features to match your exact needs and property constraints. Our design team will work with you to make it yours.

What's Included

check_circle Full architectural drawings
check_circle Structural engineering
check_circle Permit processing
check_circle Premium finishes
check_circle Energy-efficient design
check_circle Full site preparation
architecture Floor Plan Drawing
Vela 2D Floor Plan Drawing
zoom_in
view_in_ar 3D Model Renders

See It Come to Life.

Vela 3D Isometric Model — Primary View
Vela 3D Isometric Model — Alternate View
Start Your Project

Love the Vela?

Schedule a free consultation and we'll walk you through how the Vela can work on your property. Every plan is fully customizable — no pressure, no obligations.

verified CA Licensed (Lic# 1041423)
shield Fully Insured
star 150+ Happy Clients